Passer au contenu principal Passer à la recherche Passer à la navigation principale
Nous contacter
Sales Contact Image
Conseil de vente 03 73 85 07 43
Service de rappel
10% de réduction sur les accessoires bien-être | Code : RELAX10

9 319,00 €

-12%
PVC 10 589,00 €
-12%

TVA incluse | Livraison gratuite

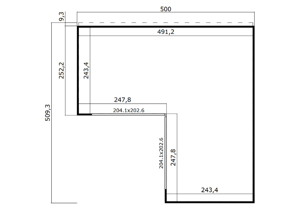
Pool House Alpholz Cosy 6

Les accessoires sélectionnés ci-dessous seront ajoutés au panier.
Purchase Advice Image
Nos experts vous aident à faire le meilleur choix Tel 03 73 85 07 43
Une question ? On vous fait une offre !
Contactez-nous en toute simplicité
Via WhatsApp
Délai de livraison 7-9 semaines
Livraison gratuite
Skonto Icon
Paiment sécurisé
Opter pour une variante du produit
Traitement de couleur :
Naturel
Livraison à la période souhaitée
Accessoires adaptés à ce produit
Description

Poolhouse Alpholz Cosy 6 - Naturel

Avec son design naturel et épuré, ce pool house en bois massif de qualité transforme votre extérieur en un lieu chaleureux et accueillant. Que vous l’utilisiez comme vestiaire, coin détente, chambre d’appoint ou espace de repos, il s’adapte à tous vos besoins.

Le modèle cosy, ce n’est pas qu’un simple abri de jardin : c’est un véritable cocon de bien-être, une pièce en plus chez vous, où confort et authenticité se rencontrent.

 Disponible en plusieurs couleurs
 Coins parfaitement étanches grâce à une conception moderne
 Vitrage en verre isolant (verre ISO)


Fiche technique | Pool house Alpholz Cosy 6 - Naturel

  • Dimensions extérieures avec débord de toit (en cm) : 500 x 509,3
  • Dimensions du socle (en cm) : 500 x 500
  • Surface de base (en m²) : env. 17,88
  • Hauteur des parois latérales (en cm) : env. 234
  • Hauteur totale (en cm) : env. 250,8
  • Volume de la pièce (en m³)  : env. 43,62
  • Pente du toit (en °) : 1,3°
  • Épaisseur des parois (en mm) : 44

Matériaux et finitions :

  • Couleur extérieure : naturel

  • Intérieur : bois brut, non traité

  • Bois : épicéa nordique de qualité

  • Montage : système à emboîter et à visser

Inclus dans la livraison | Pool house Alpholz Cosy 6 - Naturel

✔ Plancher inclus

✔ 2 portes coulissantes (204 x 202,6 cm) en 2 parties

✔ Porte coulissante (400 x 202,6 cm) en 4 parties

✔ Kit de quincaillerie (vis, fixations...)

✔ Plan de montage détaillé fourni

Remarques

Nous attirons votre attention sur le fait que la couverture de toit est disponible en option.

Accessoires et Services
2 Accessoire(s) sont actuellement séléctionné(s) (incluant nos recommandations). Les quantités adaptées sont déjà définies.

Ce dont vous avez besoin pour le montage

Set eco Accessoires de montage et de fixation ES

Plus de détails

Set eco Accessoires de montage et de fixation ES

Barrière contre l'humidité, équerre anti-tempête

Set d'accessoires de base avec jusqu'à 20% d'économie par rapport à l'achat individuel !

Le set minimal pour un montage et un ancrage sûrs de votre abri de jardin.

Nous recommandons vivement ce kit pour chaque abri de jardin. Ces produits sont nécessaires pour que votre abri de jardin soit protégé de l'humidité et des tempêtes. Avec ce kit de base - adapté à votre maison - vous êtes sûr de profiter de votre abri de jardin pendant de nombreuses années !

Ce kit est calculé pour les abris de jardin d'une surface de base de 0 à 20 m². Avec ce kit, vous avez donc en un clic tout ce dont vous avez besoin pour monter et ancrer votre abri de jardin en toute sécurité - et en quantité suffisante.

Composé de :

  • Barrière contre l'humidité (set d'env. 100 pièces)
  • Equerre anti-tempête (set de 4 pièces)

Description Barrière contre l'humidité :

Sous-couche Pads en granulés de caoutchouc spéciaux pour les bois d'assise et de fondation.

Les pads en granulés de caoutchouc sont utilisés lors de la construction de l'ossature d'un abri de jardin comme barrière contre l'humidité et pour compenser les inégalités. Ils sont placés sous l'ossature ou posés sur la plaque de fondation. Les plots doivent être posés au mieux tous les 30 à 40 cm. Comme les plots sont fabriqués à partir de granulés de caoutchouc spéciaux, ils ne peuvent ni absorber l'eau ni se dégrader. Le caoutchouc protège la sous-construction de votre abri de jardin contre les remontées d'humidité et évite ainsi l'altération et la pourriture de la sous-construction. En même temps, la structure surélevée garantit un drainage et l'eau peut s'écouler sans problème, tout en assurant une parfaite circulation de l'air sous les bois de fondation.

Avantages de nos plots en granulés de caoutchouc spéciaux

  • Pas d'arêtes vives
  • Protection contre les remontées d'humidité
  • Diffusion de vapeur
  • Isolant contre les bruits d'impact
  • Compense les inégalités de la dalle de sol
  • Antidérapant
  • Imputrescible car fabriqué à 100% en caoutchouc
  • Indéformable
  • Pas d'eau stagnante sous les bois
  • Sert de drainage, l'eau peut s'écouler dans toutes les directions

Dimensions des pastilles :

60 x 60 x 6 mm (longueur x largeur x épaisseur)

Contenu par emballage

Une unité d'emballage comprend environ 100 pads de granulés de caoutchouc spéciaux.

Description Cornières anti-tempête :

Kit spécial d'équerres anti-tempête ( 4 pièces) pour la fixation de l'abri de jardin aux fondations.

Nous recommandons de fixer votre abri de jardin dans les régions particulièrement exposées au vent à la plaque de fondation ou de sol à l'aide de nos équerres spéciales tempête. Les équerres peuvent être fixées au choix à l'intérieur ou à l'extérieur dans au moins les quatre coins de votre abri de jardin sur la plaque de base. L'équerre spéciale a une branche extra longue et relie ainsi la plaque de fondation ou de sol au bois de fondation et aux deux premières rangées de madriers. Pour les maisons de jardin ou les maisons en madriers plus grandes, il faut ajouter aux quatre coins un élément au milieu de chaque mur.
une équerre dans chaque mur. Nous livrons les équerres anti-tempête sans matériel de fixation (vis et chevilles).

Unité d'emballage par set :

Un set se compose de 4 équerres anti-tempête spéciales (sans matériel de fixation).

Dimensions : env. 28,5 x 9 x 6,5 cm ; épaisseur du matériau : env. 0,5 cm

 

 

€ 66,00

Kit économique de couverture de toit KSK G WP 26 m² -

Plus de détails

Kit économique de couverture de toit KSK G WP 26 m²

KSK Membrane de toiture et cornières, vis de ferblantier incluses

Kit de couverture de toit - KSK avec jusqu'à 20% d'économie par rapport à l'achat individuel !

Le kit complet pour un toit étanche à la pluie.

Ce kit est calculé pour les abris de jardin avec une surface de toit allant jusqu'à 26 m². Avec ce kit, tu as en un clic tout ce dont tu as besoin pour un toit étanche à la pluie pour ton abri de jardin - et en quantité suffisante.

Composé de :

  • Membrane de toiture KSK (13 rouleaux)
  • Cornière type 1b (12x 2m)
  • Vis de ferblantier avec rondelles d'étanchéité (3x 20 pcs.)

Description de la membrane de toiture KSK :

La membrane de toiture KSK est une membrane bitumineuse autocollante qui peut être utilisée rapidement, facilement et en toute sécurité pour l'étanchéité d'abris de jardin, de garages, d'abris de voiture ou de petites constructions similaires, sans utilisation de flammes.

Détails du produit pour la bande de toiture KSK

  • Dimensions : 0,5 x 5m
  • Épaisseur : env. 4,0 mm
  • Pente de toit à partir de 5°.
  • Température de mise en œuvre : +15 à +35 °C
  • Couleur : anthracite

Description de l'article Cornière type 1b :

Pour assurer la durabilité de votre couverture de toit, il est nécessaire de recouvrir les joints entre la membrane bitumineuse ou le film de toiture et les bandeaux de toiture afin d'éviter que l'humidité ne s'infiltre et que la couverture de toit ne se décolle.

La cornière de type 1 en aluminium ne protège pas seulement les bandeaux de toit sur les toits plats et les toits en appentis contre l'humidité, mais offre également une finition de toit propre et esthétique.

  • Pour le côté étroit supérieur des bandeaux sur les maisons à toit plat Aluminium anthracite
  • Dimensions type 1b
  • A 30 mm
  • B 30 mm
  • C 15 mm
  • Longueur 2 m
  • épaisseur : 0,5 mm

Description de l'article Vis de ferblantier :

Vis de ferblantier avec rondelle d'étanchéité en V2A, convient par ex :

  • Couverture de faîtage
  • cornières
  • Tôles d'égout
  • tôles de toit
  • et bien d'autres.

Détails techniques :

  • Dimension : 4,5 x 20 / Torx
  • Couleur : anthracite RAL 7016
  • Contenu : 20 pcs.

Nous recommandons 4 vis par profilé.

Ce paquet d'accessoires est calculé avec des quantités générales nécessaires pour l'abri de jardin. En raison des différentes techniques de pose, les quantités peuvent être exploitées différemment. En cas de doute, nous recommandons d'acheter les articles séparément.

€ 619,00

Vis de ferblantier 4,5x20

Plus de détails

Vis de ferblantier 4,5x20

Description de l'article :

Vis de ferblantier avec rondelle d'étanchéité en V2A, convient par ex :

  • Couverture de faîtage
  • Cornières
  • Tôles d'égout
  • Tôles de rive
  • et bien d'autres.

Détails techniques :

  • Dimensions : 4,5 mm de diamètre et 20 mm de longueur / Torx
  • Couleur : anthracite RAL 7016
  • Contenu : 20 pcs

Veuillez modifier le nombre de vis en fonction de la quantité nécessaire. Nous recommandons 4 vis par profilé.

€ 19,00

Panneau de toit plat type 10

Plus de détails

Panneau de toit plat type 10

Pour les Cubus et les abris de jardin à toit plat sans planche de rive. Peut être utilisé sur trois ou quatre côtés de la maison. Peut être combiné avec un ensemble de gouttières ou de tuyaux de descente.

Ensemble de 2 pièces, composé de :

  • 1x bande de type 10a (extérieur) : A : 120 mm ; B : 30 mm ; C : 15 mm ; D:90° ; E:225° ; F:135°
  • 1x bande de type 10b (intérieur) : A : 85 mm ; B : 85 mm ; C : 30 mm ; D:45° ; E:135°
  • Aluminium, revêtement en poudre anthracite
  • Longueur : 200cm chacun
  • Épaisseur : 0,8 mm

Les vis ne sont pas incluses. Vous pouvez trouver des vis à tôle adaptées sur notre boutique. 

 

€ 79,00

Support de fondation en plastique - Robuste

Plus de détails

Support de fondation en plastique

Veuillez modifier le nombre de poutres de fondation en fonction de la quantité nécessaire.
Calcule simplement le périmètre de l'abri de jardin ou de l'abri de jardin et choisis le nombre de poutres de fondation correspondant.

Ce support de fondation en plastique est doté d'un larmier pratique qui protège la première couche du mur contre l'humidité.

  • Dimensions : 35 x 85 x 3000 mm
  • Matériau : plastique
  • quantité : 1
  • à utiliser en combinaison avec le plancher/les bois de fondation
  • disponible en version standard pour une épaisseur de mur 
  • découpe facile des supports de fondation, possible avec n'importe quelle scie manuelle ou scie sauteuse du commerce

 

 

€ 49,00

Jeu d'outils pour le montage

Plus de détails

Jeu d'outils pour le montage

Le jeu d'outils parfait pour vous- des outils soigneusement sélectionnés indispensables lors du montage. Avec ce set, vous disposez de tout ce dont vous avez besoin pour assembler votre nouveau produit de rêve en un seul clic.
Ne laissez rien au hasard et assurez-vous d'obtenir la boîte à outils avec des outils professionnels recommandés par des professionnels !

Contenu de l'ensemble :

  • 2 paires de gants de travail taille 10,5 (XL)
    Le travail du bois procure un grand plaisir, qui ne doit pas être diminué par un petit éclat. Avec des gants de travail, de telles blessures sont évitées.
  • Marteau en métal avec tête en caoutchouc
    Tous les marteaux ne sont pas adaptés à la recherche des planches, car les attaches métalliques sont trop dures pour entrer en contact avec le bois et l'endommagent lorsqu'elles le frappent. Pour éviter de tels dommages, il est recommandé d'utiliser un marteau en métal avec une tête en caoutchouc. Comme l'accessoire est amovible, le marteau peut être utilisé pour d'autres travaux par la suite.
  • Ruban de mesure 5 m
    La mesure régulière sert à la construction prévue, ainsi qu'à la stabilité. La fermeture sans problème des portes et des fenêtres, en particulier, exige un travail de précision lors du montage, qui est garanti par un mètre à ruban roulant.
  • Scie à main
    Certains produits contiennent des planches de toit ou de plancher, qui doivent être ajustées avant l'utilisation. Avec la scie à main incluse dans cet ensemble, ce n'est pas un défi.
  • Niveau à bulle 600 mm
    Comme vous ne voulez probablement pas de la tour de Pise dans votre jardin, mais d'une maison de jardin stable et sûre, il est bon d'utiliser un niveau à bulle pendant la construction pour garder un œil sur le fil à plomb des fondations et du produit.
  • Sangle d'arrimage 6 m
    Seule une maison droite est une maison sûre ! Utilisez les sangles d'arrimage pour la plomberie et le redressement des murs afin de maintenir facilement les dimensions diagonales et angulaires requises.
  • Brosse plate de 30 mm et 60 mm de longueur
    Le choix de la couleur distingue votre maison de jardin de celle de votre voisin. Avec les pinceaux appropriés, il n'y a pas de limites à votre originalité et individualité pour des peintures plus ou moins grandes. L'ensemble contient donc des pinceaux pour l'application d'imprégnation, de peinture et de vernis.
  • Pince à vis 500 x 120 mm
    Lors de l'assemblage, les planches sont posées les unes sur les autres sous forme d'anneaux de planche. Les colliers de serrage à vis maintiennent les planches en place pendant le processus et les gardent droites pour garantir une construction parfaite.
  • Presse à cartouche squelette et acrylique transparent
    Ne laissez pas l'humidité due aux fuites gâcher le plaisir du nouveau produit ! Avec la presse à cartouche, la masse d'étanchéité acrylique transparente jointe est appliquée sur les zones respectives pour les sceller presque sans laisser de traces.

€ 95,00

Patins de sol en plastique PGH - Réglable de 3 à 6 cm

Plus de détails

Patins de sol en plastique PGH

Ce support de sol en plastique neuf peut être utilisé de manière flexible et est réglable en hauteur. Il permet ainsi de compenser toute surface inégale.

Détails de l'article :

  • Dimensions : env. 16 x 16 x 5 cm
  • Matériau : plastique
  • Nombre : 1
  • distance entre les différents supports de sol : env. 30 cm
  • disponible en deux plages de réglage différentes
  • charge maximale de 450 kg ou 1400 kg
  • à utiliser en combinaison avec un plancher/des bois de fondation

€ 49,00

KSK Membrane de toiture 0,5 x 5m -

Plus de détails

KSK Membrane de toiture 0,5 x 5m

La membrane KSK est une membrane bitumineuse autocollante qui peut être utilisée rapidement, facilement et en toute sécurité pour l'étanchéité des abris de jardin, des garages, des abris de voiture ou d'autres petites constructions similaires, sans utilisation de flammes.

Auto-adhésif à froid

Facile à poser

Mise en œuvre rapide

Détails du produit pour la membrane de toiture KSK

  • Dimensions : 0,5 x 5m
  • Épaisseur : env. 4,0 mm
  • Pente de toit à partir de 5°.
  • Température de mise en œuvre : +15 à +35 °C
  • Couleur : argent

€ 69,00

DACHPROTECT EPDM SET n° 41

Plus de détails

DACHPROTECT EPDM SET n° 41

Les films de toiture EPDM pour toits plats et monopentes conviennent parfaitement comme couverture de toit pour les cabanes de jardin, les abris de jardin et les carports. Elles conviennent en outre comme support pour une future végétalisation de la toiture, en tenant compte de la charge maximale du toit. Les films EPDM sont de plus en plus utilisés pour remplacer les couvertures classiques en carton goudronné.

Avec notre kit de feuilles EPDM, vous faites l'acquisition d'une couverture de toit dont la longévité est difficilement égalable. Il convient de souligner l'espérance de vie de plus de 50 ans, la grande stabilité thermique de -45°C à +130°C et l'excellente résistance au vent et aux intempéries, aux rayons UV et aux autres influences environnementales. En outre, la pose est extrêmement simple, même avec des compétences manuelles limitées, et ne nécessite aucun outil spécial. Il suffit d'appliquer la colle de surface directement sur les planches de toit, de presser le film et votre toit d'abri de jardin reste étanche de manière fiable - et ce, garanti pour les 20 prochaines années en cas d'utilisation conforme (garantie du fabricant sur le matériau). Nos couvertures de toit en EPDM sont fabriquées d'une seule pièce, ce qui garantit une étanchéité à 100%.

Nous vous recommandons d'utiliser les cornières disponibles en accessoires pour couvrir les planches de toit.

 

étanchéité de toiture agréée

recyclable - possibilité de l'éliminer avec ses propres déchets ménagers

résistant aux racines - optimal pour une future toiture verte

pose facile - aucun outil spécial n'est nécessaire

étanchéité sans joint en une seule pièce

simple - sûr - durable - durable

 

Description de l'article :

  • Épaisseur 1,2 mm
  • Poids surfacique : 1,5 kg/m
  • Résistant aux UV
  • Résistant à l'ozone
  • Résistant aux racines
  • Sans entretien
  • Praticable à pied
  • Exempt de plastifiants
  • Durablement élastique, allongement à la rupture > 300
  • Idéal comme support pour les toitures végétalisées
  • Pour la durabilité de votre couverture de toit, il est nécessaire de recouvrir les joints ouverts avec des cornières ou des baguettes en aluminium afin d'éviter que l'humidité ne s'infiltre et que la bâche ne se détache.

Contenu de la livraison :

  • découpe de bâche EPDM en rouleau
  • colle de surface à base d'eau nécessaire pour le collage sur le bois et les matériaux dérivés du bois (ne convient pas aux supports tels que le Styrodur), couleur blanche
  • Rouleau avec poignée

- Dimensions du film : 6,1 m x 6,4 m

 

Voici comment déterminer la bonne taille de film pour votre abri de jardin, votre carport ou votre toit :

Dimension du mur ou du poteau
+ taille du débord de toit x 2
+ 15-20 cm de hauteur du panneau x 2
= taille de film souhaitée

 

€ 999,00

Accessoires pour votre produit

Ensemble d'ancrage au vent pour les madriers

Plus de détails

Ensemble d'ancrage au vent pour les madriers

Ensemble d'ancrage au vent pour les maisons en bois

Dans les régions où le vent est particulièrement fort, nous vous recommandons de sécuriser votre maison d'été avec un kit d'ancrage supplémentaire contre le vent.
L'ensemble se compose de tiges filetées stables, qui sont montées aux quatre coins de votre abri de jardin, de l'extérieur ou de l'intérieur, à l'aide de supports métalliques spéciaux et de ressorts de tension.
Les tiges filetées relient le bloc de planches le plus bas et le plus haut et empêchent ainsi les différents madriers de s'écarter les uns des autres et les maintiennent ainsi ensemble par temps de tempête.
Comme les planches individuelles ne doivent pas être vissées ensemble, la fixation avec cet ensemble est la meilleure façon de relier les planches entre elles.
 

Le kit contient

8 x tiges filetées M6 x 1000mm (pouvant être montées aux 4 coins), douilles de raccordement incluses, des supports de montage, des ressorts de traction et du matériel de montage avec des vis.

Le matériel de montage (vis) convient aux maisons en bois rond d'une épaisseur de paroi de 19 à 45 mm.
Si vous utilisez ce jeu pour des planches de bloc plus épaisses (plus de 45 mm), les vis doivent être remplacées par des vis plus longues sur place !

Pour une protection à 100 % contre les tempêtes, nous recommandons de combiner ce kit avec le kit de fixation à la plaque de fondation.

 

 

€ 69,00

Bar en bois

Plus de détails

Bar en bois

Description de l'article :

  • Dimensions extérieures : 200 x 75 cm
  • Dimensions du socle : 190 x 65 cm
  • Hauteur totale : env. 110 cm
  • profondeur du comptoir : env. 45 cm
  • instructions de montage et matériel de montage inclus
  • Épaisseur du matériau : 40 mm
  • Montage latéral possible

€ 869,00

Garantie Confort

Plus de détails

Garantie Confort

Quels produits sont couverts par la Garantie Confort ?

Notre Garantie Confort s'applique exclusivement aux produits destinés à un usage privé, notamment :

  • Abris de jardin et cabanes à outils – un espace de détente ou une solution de stockage pratique
  • Saunas – pour des moments de bien-être et de relaxation à domicile
  • Aires de jeux pour enfants – un espace ludique pour s’amuser en toute sécurité
  • Pavillons en bois – un coin de paradis dans votre jardin
  • Carports – une protection efficace pour votre véhicule contre la pluie, la neige et le soleil
  • Garages – un espace sécurisé avec du rangement supplémentaire

Grâce à cette garantie, vous bénéficiez d’un produit de qualité et d’une assistance rapide en cas de besoin.

Que couvre la Garantie Confort ?

Avec la Garantie Confort, pas d’inquiétude à avoir. En cas de dommage, vous recevez gratuitement les pièces de rechange, pour les éléments suivants : 

  • Portes (bris de verre jusqu’à 200€)
  • Fenêtres (bris de verre jusqu’à 200€)
  • Gouttières – pour une évacuation efficace de l’eau
  • Serrures de porte – pour une sécurité optimale
  • Ferrures – pour remplacer de petites pièces essentielles
  • Revêtement de toiture (feutre bitumé, bardeaux, KSK) – une protection efficace contre les intempéries

À savoir :
La Garantie Confort couvre uniquement la fourniture des pièces de rechange. L’installation reste à votre charge.

Avec la Garantie Confort, vous bénéficiez d’une protection optimale et profitez pleinement de votre produit Abrineo.com en toute sérénité.

€ 69,00

Accessoires pour l'extérieur

Attache de gouttière

Plus de détails

Attache de gouttière

Un solin de gouttière est la terminaison professionnelle au niveau de l'avant-toit. Il s'agit de la plaque de transition entre la surface du toit et la gouttière. L'insert assure une entrée d'eau contrôlée dans la gouttière.

Matériau : acier galvanisé, revêtement en poudre

Dimensions : A:60mm B:125mm D:15mm

Longueur:200cm Epaisseur:0,50mm

Les vis ne sont pas incluses dans la livraison. Vous pouvez trouver des vis à tôle adaptées sur notre boutique. 

€ 39,00

PGH Apprêt de protection et isolant pour abri de jardin - Poids COV : 0,066

Plus de détails

PGH Apprêt de protection et isolant pour abri de jardin - Poids COV : 0,066

L'apprêt isolant PGH est un apprêt spécial blanc à base d'eau pour le bois intérieur et extérieur.

Grâce à sa formulation spéciale, l'apprêt PGH isolant empêche la pénétration d'ingrédients du bois solubles dans l'eau et tachants, et donc la formation de taches à la surface du revêtement. Il peut être utilisé à l'extérieur et à l'intérieur sur tous les bois durs et les bois tendres. Peut également être utilisé pour l'apprêtage des MDF, OSB et panneaux de particules.

Domaines d'application : 

Bois intérieur et extérieur, par exemple bois dur et bois tendre, ainsi que MDF, OSB et panneaux de particules.

Propriétés :

  • Prétraitement isolant pour usage intérieur et extérieur
  • Contre la pénétration des ingrédients du bois
  • À base d'eau
  • Blanc

Utilisation :

2,5l suffisent pour environ 20-25 m² avec une seule couche.

€ 59,99

Apprêt intérieur pour abri de jardin PGH Premium - Poids COV: 0,082

Plus de détails

Apprêt intérieur pour abri de jardin PGH Premium - Poids COV: 0,082

La lasure PGH intérieure est une finition pour bois brillante, à séchage rapide et diluable à l'eau, destinée à un usage intérieur.

L'apprêt PGH intérieur est respectueux de l'environnement car il est pauvre en substances nocives, facile à appliquer et perméable à la vapeur d'eau. Il repousse l'eau et la saleté et protège ainsi le bois. Il peut également être utilisé comme couche de fond pour les revêtements ultérieurs avec des peintures à l'eau. Grâce à son réglage anti-goutte, il est également idéal pour les travaux en hauteur.

Domaines d'application : 

Bois intérieur, par exemple saunas (extérieur uniquement), meubles, portes ou boiseries.

Propriétés :

  • Finition bois vernis pour l'intérieur
  • Hydrofuge et régulateur d'humidité
  • Protège contre les salissures
  • Fini soyeux et brillant

Utilisation :

2,5l suffisent pour environ 23-28 m² avec une seule couche.

€ 49,00

Set de gouttières RG 100 - pour 1 côté de toit jusqu'à 9 m - Anthracite métallisé

Plus de détails

Set de gouttières RG 100 - pour 1 côté de toit jusqu'à 9 m

Pour les maisons en bois massif d'une longueur de côté jusqu'à 9 m, set complet pour 1 côté de la maison en bois.

Les kits de gouttières Marley protègent les murs et les fondations des cabanes de jardin et des maisons en bois massif de manière sûre et fiable contre les dommages causés par l'eau de pluie.

Les avantages :

  • Kit complet avec gouttières, tuyaux de descente et accessoires de fixation.
  • Facile à monter
  • Tout est fourni dans le kit
  • Résistant aux intempéries, aux UV et à la température
  • Plastique résistant aux chocs et de haute qualité
  • Qualité supérieure - Made in Germany
  • 10 ans de garantie

Contenu du set :

  • 4x Gouttière, demi-ronde 2 m RG 100
  • 2x Gouttière, demi-ronde 1 m RG 100
  • 4x coque de raccordement de gouttière RG 100
  • 4x embout pour gauche et droite RG 100
  • 18x support de gouttière RG 100
  • 18x équerres de réglage pour support de gouttière
  • 2x manchons RG 100 / DN 75
  • 4x coude de tuyau DN 75, 45
  • 2x tuyau de descente DN 75 2 m
  • 4x Collier de serrage avec boulon à œil

€ 579,00

Set de planches de terrasse en bois, pin imprégné

Plus de détails

Set de planches de terrasse en bois, pin imprégné

Le set de planches de terrasse de haute qualité en pin imprégné séduit par sa très large possibilité d'utilisation. Le set s'adapte individuellement et très facilement à chaque terrasse et peut être facilement étendu en taille avec d'autres sets. Le bois des planches et de l'ossature convainc par sa bonne durabilité. Les vis sont en acier inoxydable de haute qualité. Vous pourrez ainsi profiter longtemps de votre terrasse.

✓ Montage facile

Adaptable individuellement

✓ Bois durable

✓ Vis en acier inoxydable

Pratique - directLivraison à votre domicile

Détails de l'article :

  • Longueur des lames : 3 m (contenu du paquet : 3,045 m²)
  • Nombre de lames/paquet : 7
  • Dimension du profil : 28 x 145 mm
  • Profilage : rainuré grossièrement d'un côté, raboté d'un côté
  • Matériau : pin KDI

Inclus dans la livraison :

  • 7 x planches de terrasse en pin imprégnées en autoclave de 3 m chacune (contenu du paquet : 3,045 m²) ; Profil : 28 x 145 mm
  • 4 x sous-construction de 3 m ; profilé 45 x 7 mm
  • 120 pcs. vis en acier inoxydable 5 x 50 mm pour lames de bois
  • 20 pcs. vis en acier inoxydable 5 x 70 mm pour sous-construction

Un montage facile :

Le set de planches de terrasse de 3 m² se compose de 7 pcs. Lames de terrasse en pin imprégnées sous pression de 3 m, 4 pcs. sous-construction de 3 m, 120 pcs. vis en acier inoxydable 5 x 50 mm pour les planches ainsi que 20 pcs. vis en acier inoxydable 5 x 70 mm pour la sous-construction. Le kit peut être combiné individuellement avec d'autres kits de la même essence de bois pour former des terrasses plus grandes.

Le set de planches de terrasse est exclusivement destiné à un usage privé et ne peut pas être utilisé à des fins commerciales. Veuillez utiliser le kit de planches de terrasse uniquement comme décrit dans ce mode d'emploi. Dans le cas contraire, une utilisation non conforme peut entraîner des dommages corporels ou matériels.

Les lames de terrasse et les lambourdes (UK) peuvent être découpées individuellement. La UK forme un cadre avec des poutres intermédiaires. Ce cadre est aligné et fixé sur le support à l'aide de pentes et de cales d'espacement ou, par exemple, de dalles de terrasse ou de pierres de gazon. Ensuite, les planches sont alignées et vissées à la sous-construction.

Le support doit être une surface suffisamment compactée et résistante au gel avec une faible pente de 2-3 %. Le cas échéant, le support peut également être préparé avec un non-tissé contre les mauvaises herbes.

2. Les poutres inférieures sont sciées et vissées avec des vis en acier inoxydable 5 x 70 mm conformément à l'illustration, si nécessaire prépercer. L'écart entre les poutres intermédiaires ne doit pas dépasser 45-50 cm. Le cadre UK est maintenant aligné sur le support avec une pente sur les points d'appui et peut être fixé si nécessaire avec des chevilles ou des vis (non fournies). Les points d'appui doivent être distants d'environ 50-60 cm dans le sens de la longueur et de la largeur.

3. Sciez les lames de terrasse. Les extrémités des lames doivent dépasser d'environ 2 à 10 cm de la sous-construction. Sur la longueur, elles ne doivent pas dépasser 4 cm. Vissez les lames avec les vis en acier inoxydable 5 x 50 mm. Veuillez respecter la distance minimale de 25 mm entre les points de vissage et les bords des lames afin d'éviter que le bois ne se fende - pré-percez si nécessaire. Vissez les lames à tous les points d'intersection avec la sous-construction. L'écart entre les joints des lames doit être de 5-8 mm.

4. Il est recommandé de traiter les lames de terrasse avant ou après le montage avec une lasure ou une huile afin de mieux les protéger contre les intempéries.

€ 389,00

Set de planches de terrasse en bois RedClass

Plus de détails

Set de planches de terrasse en bois RedClass

Le set de planches de terrasse de qualité supérieure Red-Class séduit par sa très large possibilité d'utilisation. Le set s'adapte individuellement et très facilement à chaque terrasse et peut être facilement étendu en taille avec d'autres sets. Le bois des planches et de la sous-construction convainc par sa bonne durabilité. Les vis sont en acier inoxydable de haute qualité. Vous pourrez ainsi profiter longtemps de votre terrasse.

Montage facile

Adaptable individuellement

Bois durable

Vis en acier inoxydable

Pratique - directLivraison à votre domicile

Contenu du set :

  • 7 x planches de terrasse en bois de 3m chacune
  • 4 x lambourdes de 3m (4,5x7,0cm)
  • 120 x vis en acier inoxydable 5x50mm pour les planches en bois
  • 20 x vis en acier inoxydable 5x70mm pour la sous-construction

Détails de l'article :

  • Longueur des lames : 300 cm (contenu du paquet : 3,045 m²)
  • Nombre de lames/paquet : 7
  • Dimension du profil : 28 x 145 mm
  • Profilage : rainuré grossièrement d'un côté, raboté d'un côté
  • Matériau : Red-Class

Inclus dans la livraison :

  • 7x lames : 300 cm (contenu du paquet : 3,045 m²) ; Profil : 28 x 145 mm
  • 4x 3 mètres de sous-construction ; profilé 45 x 7 mm
  • 120 pcs. Vis en acier inoxydable 5 x 50 mm
  • 20 pcs. Vis en acier inoxydable 5 x 70 mm

Un montage facile :

Le set de lames de terrasse de 3m² se compose de 7 pcs. Lames de terrasse en bois de 3m, 4 pcs. Lame de sous-construction a 3m, 120 pcs. vis en acier inoxydable 5x50 pour les planches ainsi que 20 vis en acier inoxydable 5x50 pour l'ossature. Vis en acier inoxydable 5x70 pour la sous-construction. Le kit peut être combiné individuellement avec d'autres kits de la même essence de bois pour former des terrasses plus grandes. Le set de planches de terrasse est exclusivement destiné à un usage privé et ne peut pas être utilisé à des fins commerciales. Veuillez utiliser le kit de planches de terrasse uniquement comme décrit dans ce mode d'emploi. Dans le cas contraire, une utilisation non conforme peut entraîner des dommages corporels ou matériels.

Les lames de terrasse et les lambourdes (UK) peuvent être découpées individuellement. La UK forme un cadre avec des poutres intermédiaires. Ce cadre est aligné et fixé sur le support à l'aide de pentes et de cales d'espacement ou, par exemple, de dalles de terrasse ou de pierres de gazon. Ensuite, les planches sont alignées et vissées à la sous-construction.

Le support doit être une surface suffisamment compactée et résistante au gel avec une faible pente de 2-3 %. Le cas échéant, le support peut également être préparé avec un non-tissé contre les mauvaises herbes.

2. les poutres inférieures sont sciées et vissées avec des vis en acier inoxydable 5x70 conformément à l'illustration, si nécessaire prépercer. L'écart entre les poutres intermédiaires ne doit pas dépasser 45-50 cm. Le cadre UK est maintenant aligné sur le support avec une pente sur les points d'appui et peut être fixé si nécessaire avec des chevilles ou des vis (non fournies). Les points d'appui doivent être distants d'environ 50-60 cm dans le sens de la longueur et de la largeur.

3. sciez les lames de terrasse. Les extrémités des lames doivent dépasser d'environ 2 à 10 cm de la sous-construction. Sur la longueur, elles ne doivent pas dépasser 4 cm. Vissez les lames avec les vis en acier inoxydable 5x50. Veuillez respecter la distance minimale de 25 mm entre les points de vissage et les bords des lames afin d'éviter que le bois ne se fende - pré-percez si nécessaire. Vissez les lames à tous les points d'intersection avec la sous-construction. L'écart entre les joints des lames doit être de 5-8 mm.

4. il est recommandé de traiter les lames de terrasse avant ou après le montage avec une lasure ou une huile afin de mieux les protéger contre les intempéries.

€ 399,00

Accessoires pour l'intérieur

PGH Huile-cire dure 2,5 L

Plus de détails

PGH Huile-cire dure 2,5 L

Huile-cire dure de haute qualité pour l'intérieur

Notre huile-cire dure offre une solution de haute qualité pour l'apprêt et le traitement de différents supports absorbants à l'intérieur. Avec une surface satinée et résistante qui ravive les structures naturelles et approfondit les teintes, elle offre les meilleurs résultats pour les sols en bois, en liège, en pierre et autres surfaces. Facile à appliquer et testée selon les normes les plus strictes, c'est le choix idéal pour des résultats professionnels.

Détails de l'article Huile-cire dure :

  • Application : Apprêt et traitement des supports absorbants à l'intérieur.

  • Propriétés : surface satinée, approfondit la teinte, hydrofuge.
  • Testée sur la résistance aux produits chimiques et la migration.
  • Composants : huile de lin, huile de bois, huile de ricin, ester de résine naturelle, autres.
  • Teneur en COV : max. 440 g/l (valeur limite UE : max. 500 g/l).
  • Application : Agiter avant l'emploi, appliquer en fine couche, polir.
  • Temps de séchage : env. 6-12 heures, recouvrable après 16-24 heures.
  • Consommation : 30-50 g/m² ; rendement env. 20 m²/l.
  • Stockage : Au frais, au sec, non ouvert, se conserve au moins 24 mois.
  • Élimination des déchets : Selon les prescriptions locales.
  • Remarques : Les couleurs sont données à titre indicatif, il est recommandé de faire un essai.

€ 79,00

Set de rangement Basique

Plus de détails

Set de rangement Basique

Ce set de rangement de base est la cerise sur le gâteau pour votre nouvelle cabane de jardin. Grâce à notre set de rangement soigneusement composé, les outils trouvent chacun leur place et peuvent être facilement suspendus au mur. Cela permet non seulement de gagner de la place, mais garantit également une sensation d'espace accueillant et bien rangé.

Les crochets contenus dans le set ont une grande capacité de charge et conviennent parfaitement au tri et au rangement de : échelle, seau, rallonge électrique, arrosoir, tuyau d'arrosage, râteau, pelle, etc. jusqu'au vélo.

Le set de rangement se compose de :

  • 2 x crochets standard en tube d'acier galvanisé, inoxydable, Ø 16 mm, profondeur 80 mm, capacité de charge jusqu'à 60 kg
  • 2 x crochets standard, en tube d'acier galvanisé, inoxydable, Ø 16 mm, profondeur 210 mm, charge max. 60 kg
  • 2 x crochets standard, en tube d'acier galvanisé, inoxydable, Ø 16 mm, profondeur 285 mm, charge max. 60 kg
  • 5 x petits crochets simples en acier, Ø 8 mm, hauteur 8 cm, capacité de charge jusqu'à 50 kg
  • 1 x crochet double rouge gainé, Ø 10 mm, profondeur 70 mm, charge admissible jusqu'à 80 kg
  • 1 x support pour 1 poignée, diamètre 16-32 mm
  • 1 x crochet pour vélo avec fixation à travers la roue
  • 1 x crochet pour 1 outil à main, Ø 16 mm, hauteur 158 mm, largeur 166 mm, profondeur 115 mm, capacité de charge jusqu'à 30 kg

€ 59,00

Set de rangement Standard

Plus de détails

Set de rangement Standard

Ce set de rangement de base est la cerise sur le gâteau pour votre nouvelle cabane de jardin. Grâce à notre set de rangement soigneusement composé, les outils trouvent chacun leur place et peuvent être facilement suspendus au mur. Cela permet non seulement de gagner de la place, mais garantit également une sensation d'espace accueillant et bien rangé.

Les crochets contenus dans le set ont une grande capacité de charge et conviennent parfaitement au tri et au rangement de : échelle, seau, rallonge électrique, arrosoir, tuyau d'arrosage, râteau, pelle, etc. jusqu'au vélo. Certains crochets sont en outre gainés pour les protéger.

Le set de rangement se compose de :

  • 2 x crochets standard enrobés, en tube d'acier galvanisé, inoxydable, Ø 16 mm, profondeur 80 mm, charge admissible 60 kg
  • 2 x crochets standard enveloppés, en tube d'acier galvanisé, inoxydable, Ø 16 mm, profondeur 210 mm, charge admissible 60 kg
  • 2 x crochets standard enrobés, en tube d'acier galvanisé, inoxydable, Ø 16 mm, profondeur 285 mm, charge admissible 60 kg
  • 5 x crochets simples en acier galvanisé, Ø 9 mm, hauteur 125 mm, largeur 40 mm, charge admissible jusqu'à 50 kg
  • 1 x crochet double enveloppé noir, Ø 10 mm, profondeur 165 mm, charge admissible jusqu'à 80 kg
  • 1 x support de crochet multi-concept avec 3 points de suspension, Ø 16 mm, hauteur 35 mm, longueur 27 mm, profondeur 120 mm
  • 1 x crochet à vélo enveloppé avec fixation par la roue
  • 5 x supports multi-usages, Ø 10 mm, profondeur 70 mm, capacité de charge jusqu'à 80 kg
  • 1 x crochet pour 3 outils à main, Ø 16-32 mm, hauteur 158 mm, largeur 166 mm, profondeur 115 mm, capacité de charge jusqu'à 30 kg

€ 79,00

Set de rangement Premium

Plus de détails

Set de rangement Premium

Ce set de rangement de base est la cerise sur le gâteau pour votre nouvelle cabane de jardin. Grâce à notre set de rangement soigneusement composé, les outils trouvent chacun leur place et peuvent être facilement suspendus au mur. Cela permet non seulement de gagner de la place, mais garantit également une sensation d'espace accueillant et bien rangé.

Les crochets contenus dans le set ont une grande capacité de charge et conviennent parfaitement au tri et au rangement de : échelle, seau, rallonge électrique, arrosoir, tuyau d'arrosage, râteau, pelle, etc. jusqu'au vélo. Certains crochets sont en outre gainés pour les protéger.

Le set de rangement se compose de :

  • 2 x crochets enrobés dans un tube, Ø 20 mm, profondeur 150 mm, charge admissible 90 kg
  • 5 x crochets en fer plat galvanisé, acier de 1,2 mm d'épaisseur, largeur 25 mm, profondeur 25 mm, hauteur 73 mm
  • 1 x support Pro pour 3 poignées , Ø 16 - 40 mm, profondeur 285 mm, déplaçable sur le tasseau
  • 1 x cadre de support avec 7 mini-crochets en fil d'acier laqué
  • 1 x crochet double, Ø 16 mm x 2, longueur 250 mm, capacité de charge jusqu'à 80 kg
  • 1 x crochet à vélo enveloppé dans un tube avec fixation par la roue, Ø 20 mm
  • 5 x crochets doubles polyvalents, largeur 75 mm, profondeur 48 mm, hauteur 60 mm, capacité de charge jusqu'à 20 kg
  • 1 x crochet double en tube, Ø 20 mm, longueur 200 mm, capacité de charge jusqu'à 70 kg

€ 119,00

Livraison à la période souhaitée et service administratif

Service administratif - permis de construire - Abris de jardin de 20 m² et plus

Plus de détails

Service administratif - permis de construire - Abris de jardin de 20 m² et plus

SERVICE DE RÉGLEMENTATIONS ADMINISTRATIVES

Nous vous accompagnons pour vos demandes de déclaration préalables de travaux et de permis de construire !

Si vous envisagez d‘acheter un produit de plus de 5 m², vous devez déposer auprès de votre mairie : une déclaration préalable de travaux ou de permis de construire pour les produits de plus de 20 m². Ces démarches peuvent s‘avérer fastidieuses et demander beaucoup de temps.

Pas de panique, nous avons la solution pour vous ! En coordination avec notre partenaire, nous vous proposons un service complet et personnalisé afin de vous aider dans vos démarches ! Grâce à l‘expertise de professionnels vous pourrez ainsi maximiser vos chances d‘obtenir les autorisations plus facilement et ainsi pouvoir profiter de votre achat rapidement et en toute sérénité !

Découvrez les modalités de ce service 100% personnalisé pour votre projet.

Une fois votre produit choisi, ajoutez l‘option formalités administratives à votre panier et choisissez un délai de livraison supérieur à deux mois grâce à notre option de livraison à la période souhaitée.

Après la validation de votre commande par nos soins, notre partenaire vous contactera directement afin d‘échanger sur votre projet et vous envoyer les documents nécessaires pour votre dossier.

Vous recevez un avant-projet tenant compte de vos critères. Constitution du dossier avec toutes les pièces demandées (plans de situation, de masse, de coupe, notice, photographies, cerfa…)

Le dossier finalisé est envoyé par mail. Il vous suffira de le déposer vous même en ligne ou directement en mairie. En cas de refus, des modifications pourront être réalisées gratuitement.

 

 

Important : Une fois après avoir reçu l'autorisation de la mairie, veuillez nous contacter dans les plus brefs délais afin que nous puissions débloquer et expédier votre commande.

Pour cela rien de plus simple :

Veuillez noter qu‘en cas de refus définitif de la part de votre mairie, le coût de cette prestation ne pourra pas être remboursée ! Vous pourrez néanmoins annuler votre commande sur Maison et Jardin jusqu‘à 14 jours après la réception du produit et être remboursés. Cependant, le renvoi de votre produit sera financièrement à votre charge.

BON À SAVOIR :

retrouvez toutes informations supplémentaires sur ce service ici.

€ 649,00

Avis clients

Note moyenne de 0 sur 5 étoiles

(0)

Note moyenne de 0 sur 5 étoiles

(0 Avis)
Détails du produit
Largeur avec débord de toit
500
Nombre de pièces
1
Profondeur, avancée du toit incluse
509
Sol
Inclus
Surface de base
25.45
Épaisseur de paroi
44

Ces produits pourraient vous plaire :