Passer au contenu principal Passer à la recherche Passer à la navigation principale
Nous contacter
Sales Contact Image
Conseil de vente 03 73 85 07 43
Service de rappel
10% de réduction sur les accessoires bien-être | Code : RELAX10

2 999,00 €

-10%
PVC 3 339,00 €
-10%

TVA incluse | Livraison gratuite

ECO Set - Abri de jardin Leandro-28 - imprégné

Purchase Advice Image
Nos experts vous aident à faire le meilleur choix Tel 03 73 85 07 43
Une question ? On vous fait une offre !
Contactez-nous en toute simplicité
Via WhatsApp
Délai de livraison 5-7 semaines
Livraison gratuite
Skonto Icon
Paiment sécurisé
Livraison à la période souhaitée
Accessoires adaptés à ce produit
Description

ECO Set - Abri de jardin Leandro-28 - imprégné est l'abri de jardin parfait pour ton extérieur.

Ce kit contient :

  • Une couverture de toit de haute qualité pour une protection optimale
  • Un kit de montage complet pour une installation facile
  • Un kit de plancher robuste pour une stabilité à toute épreuve

tous les madriers avec un fraisage d'angle à 4 positions

une double porte de haute qualité avec cadre en bois lamellé-collé

plancher inclus

Détails de l'article pour l'abri de jardin Leandro-28 :

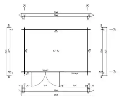
  • Dimensions extérieures avec débord de toit : 394 x 268 cm

  • Dimensions du socle : 328 x 208 cm
  • Surface de base : 8,31 m².
  • Hauteur des parois latérales : env. 210 cm
  • Hauteur totale : env. 217 cm
  • Volume de la pièce : environ 22,6 m³.
  • Pente du toit : 1°.
  • Porte double en bois collé : env. 160 x 185 cm
  • fenêtre simple : 120 x 37 cm
  • Épaisseur des murs : 28 mm

Inclus dans la livraison de l'abri de jardin :

  • Toit en panneaux multifonctionnels de 12 mm
  • plancher en panneaux multifonctionnels de 12 mm
  • tous les madriers avec fraisage d'angle quadruple (étanche au vent et à la pluie)
  • vitrage de la porte et des fenêtres en verre véritable
  • porte double de haute qualité avec cadre en bois lamellé-collé
  • Serrure, garniture de poignée, matériel de montage & plan de montage

Nous attirons votre attention sur le fait que le produit est en constante évolution et qu'il peut donc différer dans les détails de la photo présentée. Les photos des clients, en particulier, représentent des modèles partiellement modifiés par les clients.

Accessoires et Services
0 Accessoire(s) sont actuellement séléctionné(s) (incluant nos recommandations). Les quantités adaptées sont déjà définies.

Ce dont vous avez besoin pour le montage

Set de peinture opaque Premium S - Gris fenêtre

Plus de détails

Set de peinture opaque Premium S

PGH Premium Fond de protection du bois* Imprégnation, PGH Premium Fond isolant Couche d'apprêt, PGH Premium Peinture de protection contre les intempéries

Kit de peintures de finition avec jusqu'à 15% d'économie par rapport à l'achat individuel !

Adapté à la maison - tout ce dont vous avez besoin pour le traitement de la peinture de cette maison Ce kit est calculé pour des surfaces allant jusqu'à environ 24 m². Avec ce kit, vous avez donc en un clic tout ce dont vous avez besoin pour peindre l'extérieur de votre abri de jardin - et en quantité suffisante.

Composé de :

  • PGH Holzschutzgrund Imprägnierung (2 bidons de 2,5 l) pour une protection préventive contre le bleuissement, les insectes et les champignons.
  • PGH Isoliergrund Voranstrich (2 bidons de 2,5 l) contre la pénétration des substances colorées contenues dans le bois et pour éviter les colorations jaunes des couches de finition claires.
  • Peinture de protection contre les intempéries PGH (3 bidons à 2,5 l) de couleur blanche, gris clair, gris anthracite, vert mousse, rouge suédois, bleu pigeon, gris fenêtre ou brun sépia. Convient parfaitement pour la finition colorée.
  • PGH Peinture de protection contre les intempéries pour fenêtres & portes en blanc (1 bidon de 2,5 l). Accent de couleur pour les fenêtres et les portes et protection préventive contre le gauchissement des cadres de fenêtres et de portes.

Les professionnels de GartenHaus recommandent :

  1. Une seule application de PGH Holzschutzgrund* Imprägnierung, pour une protection préventive contre les attaques de bleuissement, d'insectes et de champignons.
  2. Pour les couches de finition claires : Une couche de PGH Isoliergrund contre la pénétration des substances colorées du bois et pour éviter les colorations jaunes.
  3. De l'extérieur, scellez le produit de votre choix avec deux couches de PGH Wetterschutzfarbe dans la couleur de votre choix et protégez-le efficacement et longtemps contre les intempéries.
  4. Traitez les fenêtres, les portes et les cadres de l'intérieur et de l'extérieur avec deux couches de PGH Wetterschutzfarbe en blanc. Vous mettez ainsi des accents de couleur et prévenez le gauchissement des cadres de fenêtres et de portes.

Description PGH Holzschutzgrund Imprégnation :

PGH Holzschutzgrund est une imprégnation pour bois à base d'eau, protégeant contre le bleuissement, destinée à l'extérieur.

PGH Holzschutzgrund sert à l'application préventive et à la protection sûre contre les champignons de bleuissement sur les bois sans contact avec la terre à l'extérieur.

Domaines d'application :

Bois à l'extérieur, par ex. façades en bois, abris de voiture, fenêtres et portes extérieures, dessous de toit.

Propriétés: :

  • imprégnation antibleu pour l'extérieur
  • agit en profondeur
  • à base d'eau
  • incolore

Portée :

  • 2,5l suffisent pour environ 18-21 m² en une seule couche.

* Utiliser les produits biocides avec précaution. Avant l'utilisation, toujours lire l'étiquetage et les informations sur le produit.

Description PGH Isoliergrund :

PGH Isoliergrund est une couche de fond spéciale blanche à base d'eau pour le bois à l'intérieur et à l'extérieur.

Grâce à sa formule spéciale, PGH Isoliergrund empêche la pénétration des substances hydrosolubles et colorantes du bois et donc la formation de taches à la surface de la peinture. Il peut être utilisé à l'extérieur et à l'intérieur sur tous les bois feuillus et résineux. Peut également être utilisé comme couche de fond sur les panneaux MDF, OSB et les panneaux de particules.

Domaines d'application :

Bois à l'intérieur et à l'extérieur, par ex. bois de feuillus et de conifères, ainsi que panneaux MDF, OSB et panneaux de particules.

Propriétés :

  • prétraitement isolant pour l'intérieur et l'extérieur
  • contre la pénétration des substances contenues dans le bois
  • à base d'eau
  • blanc

Portée :

  • 2,5l suffisent pour environ 20-25 m² en une seule couche.

Description PGH Premium Wetterschutzfarbe :

PGH Wetterschutzfarbe est une peinture de finition pour bois satinée, à séchage rapide et diluable à l'eau pour l'extérieur.PGH Wetterschutzfarbe est facile à appliquer, très résistante aux intempéries et perméable à la vapeur d'eau.

PGH Wetterschutzfarbe est résistante aux UV et, après un traitement préalable du support et une couche de fond, elle est idéale pour les peintures sur les bois de conifères et de feuillus à l'extérieur. Contient une protection de surface intégrée contre les algues et les champignons. Ne pas utiliser pour les sièges, les plateaux de table ou les surfaces en contact avec les aliments.

Domaines d'application :

Bois à l'extérieur, par ex. abris de jardin, carports, clôtures ou saunas.

Propriétés :

  • peinture de protection couvrante pour l'extérieur
  • résistante aux UV et aux intempéries
  • régule l'humidité
  • satinée

Rayon d'action :

  • 2,5l suffisent pour environ 13-20 m² en une seule couche.

Attention : le kit contient du matériel de peinture à appliquer soi-même sur le chantier. La représentation des couleurs peut varier en fonction de l'écran et n'est donc pas contractuelle !

€ 369,00

Set lasures colorées Premium S - Incolore – épuisé

Plus de détails

Set lasures colorées Premium S

PGH Premium Fond de protection du bois* Imprégnation, PGH Premium Lasure de protection contre les intempéries

Kit de peinture lasure avec jusqu'à 15% d'économie par rapport à l'achat individuel !

Assorti à la maison - tout ce dont tu as besoin pour le traitement des couleurs de cette maison. Ce kit est calculé pour des surfaces allant jusqu'à environ 34 m². Avec ce kit, tu as en un clic tout ce dont tu as besoin pour la peinture extérieure de ta maison de jardin. - et ce en quantité suffisante.

Composé de :

  • PGH Premium Holzschutzgrund* Imprégnation (2 bidons de 2,5 l) pour une protection préventive contre les attaques de bleuissement, d'insectes et de champignons.
  • Lasure de protection contre les intempéries PGH Premium (2 bidons de 2,5 l) en couleur pin, blanc de chaux, rouge de Suède, noyer, teck, gris agate, gris graphite ou incolore. Cette finition colorée permet de conserver les veines du bois et le charme naturel du bois.

Les professionnels de GartenHaus recommandent :

  1. Une seule application de PGH Premium Holzschutzgrund* Imprégnation, pour une protection préventive contre les attaques de bleuissement, d'insectes et de champignons.
  2. Applique deux couches de lasure de protection contre les intempéries PGH Premium dans la couleur de ton choix pour protéger efficacement ton produit contre les intempéries pendant longtemps.

Description de PGH Premium Holzschutzgrund* Imprégnation :

PGH Holzschutzgrund est une imprégnation du bois à base d'eau, protégeant contre le bleuissement, pour l'extérieur.

PGH Holzschutzgrund sert à l'application préventive et à la protection sûre contre les champignons de bleuissement sur les bois sans contact avec la terre à l'extérieur.

Domaines d'application :

Bois à l'extérieur, par ex. façades en bois, abris de voiture, fenêtres et portes extérieures, dessous de toit.

Propriétés: :

  • imprégnation antibleu pour l'extérieur
  • agit en profondeur
  • à base d'eau
  • incolore

Portée :

  • 2,5l suffisent pour environ 18-21 m² en une seule couche.

* Utiliser les produits biocides avec précaution. Avant l'utilisation, toujours lire l'étiquetage et les informations sur le produit.

Description PGH Premium Wetterschutzlasur :

PGH Wetterschutzlasur est une lasure pour bois satinée, sans aromates, pour l'extérieur.

PGH Wetterschutzlasur est réglé de manière à ne pas goutter et est donc idéal pour les travaux au-dessus de la tête. Elle a des pores ouverts, régule l'humidité et est facile à appliquer. Elle convient à tous les bois de feuillus et de conifères à l'extérieur qui doivent recevoir une couche de peinture résistante aux UV et aux intempéries.

Domaines d'application :

Bois à l'extérieur, par ex. abris de jardin, carports, pergolas, dessous de toit ou saunas.

Propriétés :

  • peinture de protection lasurante pour l'extérieur
  • résistante aux UV et aux intempéries
  • anti-goutte
  • satinée

Rayon d'action :

  • 2,5l suffisent pour environ 30-37 m² en une seule couche.

Attention : le kit contient du matériel de peinture à appliquer par le client. La représentation des couleurs peut varier en fonction de l'écran et n'est donc pas contractuelle !

€ 179,00

Avis clients

Note moyenne de 0 sur 5 étoiles

(0)

Note moyenne de 0 sur 5 étoiles

(0 Avis)
Détails du produit
Hauteur totale
217
Largeur avec débord de toit
394
Profondeur, avancée du toit incluse
268
Sol
Inclus
Surface de base
9.72
Épaisseur de paroi
28

Ces produits pourraient vous plaire :