Passer au contenu principal Passer à la recherche Passer à la navigation principale
Jusqu'à 1 500€ d'économies + 3% EXTRA avec le virement bancaire | Offre limitée
Nous contacter
Sales Contact Image
Conseil de vente 03 73 85 07 43
Service de rappel
Jours
-33% sur les accessoires | Code : ACCESSOIRES33 | Hausse des prix à partir du 5 mai en raison de l’augmentation des coûts logistiques

1 729,00 €

TVA incluse | Livraison gratuite

-33 % sur les accessoires | Code : ACCESSOIRES33

Note moyenne de 5 sur 5 étoiles

(1)

Abri de jardin Paloma Petit

Les accessoires sélectionnés ci-dessous seront ajoutés au panier.
Purchase Advice Image
Nos experts vous aident à faire le meilleur choix Tel 03 73 85 07 43
Une question ? On vous fait une offre !
Contactez-nous en toute simplicité
Via WhatsApp
Délai de livraison 6-7 semaines
Livraison gratuite
Skonto Icon
Paiment sécurisé
Opter pour une variante du produit
Couleur :
Naturel
Livraison à la période souhaitée
Accessoires adaptés à ce produit
Description

Les avantages de l'abri de jardin Paloma Petit - Naturel

Avec son allure contemporaine et ses lignes épurées, cet abri de jardin en bois s’intègre parfaitement dans les petits espaces extérieurs. Sa façade entièrement vitrée offre un bel apport de lumière naturelle, en faisant un choix idéal pour un coin bureau, un atelier créatif ou un espace de détente.

Parfait pour les espaces restreints
Lumineux et chaleureux
Matériaux durables et haute qualité


Fiche technique | Abri de jardin Paloma Sol - Naturel

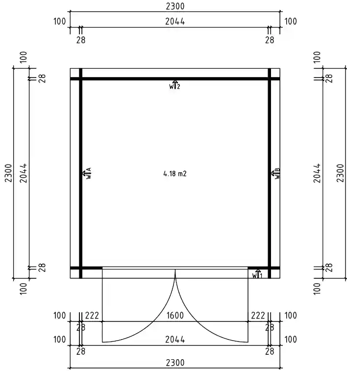
  • Dimensions extérieures avec débord de toit (en cm) : 234 x 234
  • Dimensions du socle (en cm) : 207,2 x 207,2
  • Surface de base (en m²) : 4,18 
  • Hauteur des parois latérales (en cm) : env. 216
  • Hauteur totale (en cm) : env. 228
  • Volume (en m³) : environ 9,2
  • Pente du toit (en °) : 3°
  • Porte double en bois collé (en cm) : env. 160 x 185
  • Épaisseur des parois (en mm) : 28

Inclus dans la livraison| Paloma Sol - Naturel

 Toit en bois massif en planches à rainure et languette
✔ Plancher en bois massif en planches à rainure et languette
✔ Tous les madriers avec fraisage d'angle quadruple (étanche au vent et à la pluie)
✔ Vitrage de la porte et des fenêtres en verre véritable
✔ Porte double de haute qualité avec cadre en bois lamellé
✔ Serrure, garniture de poignée, matériel de montage & plan de montage

Remarques

  • Livraison sans couverture de toit
  • Livraison sans traitement de peinture

Nous attirons votre attention sur le fait que le produit est en constante évolution et qu'il peut donc différer dans les détails de la photo présentée. Les photos des clients, en particulier, représentent en partie des modèles modifiés par les clients.

Accessoires et Services
3 Accessoire(s) sont actuellement séléctionné(s) (incluant nos recommandations). Les quantités adaptées sont déjà définies.

Ce dont vous avez besoin pour le montage

Set eco Accessoires de montage et de fixation S

Plus de détails

Set eco Accessoires de montage et de fixation S

Set d'accessoires de base avec jusqu'à 20% d'économie par rapport à l'achat individuel !

Le kit parfait pour un montage sûr et l'ancrage de ton abri de jardin - protège de manière fiable contre l'humidité, le vent et les tempêtes. En un seul clic, tu reçois tous les composants importants en quantité suffisante pour une construction durable et stable.

Composé de :

  • Barrière contre l'humidité (env. 50 pièces) en granulés de caoutchouc spéciaux - Protège contre les remontées d'humidité, compense les inégalités et assure le drainage et la circulation de l'air.
  • Équerre anti-tempête (set de 4 pièces) - Pour fixer solidement l'abri de jardin aux fondations (vis & chevilles non fournies).
  • Kit d'ancrage au vent (kit pour 2 côtés) - Relie les madriers supérieurs et inférieurs et les empêche de s'écarter en cas de tempête.

Notre recommandation

Pour une protection optimale et durable contre les tempêtes et l'humidité, nous recommandons l'utilisation combinée de tous les composants contenus dans le kit. Ainsi, ton abri de jardin est fixé de la meilleure manière possible et protégé de manière fiable contre le vent et les intempéries.

€ 149,00

Premium Sparset EPDM Couverture de toit - 3,05 x 2,5 m

Plus de détails

Premium Sparset EPDM Couverture de toit - 3,05 x 2,5 m

Ton kit complet sans entretien pour un toit à l'abri de la pluie à long terme - le kit complet EPDM à un prix avantageux avec 20 ans de garantie du fabricant !

Contenu de la livraison :

- Découpe de film EPDM : 3,05 x 2,5 m

- colle de surface

- Rouleau avec poignée

- Cornière type 1c (6 pièces) y compris vis de ferblantier avec rondelles d'étanchéité

Feuille en EPDM :

Découvrez l'étanchéité de toiture au plus haut niveau - simple, sûre, durable et pérenne. Notre film de toiture EPDM convainc par une combinaison de longévité exceptionnelle, de respect de l'environnement et de mise en œuvre sans effort.

✓ 2 0 ans de garantie du fabricant - pour une sécurité maximale et une confiance dans la qualité.
Plus de 50 ans d'espérance de vie - un investissement qui traverse les générations.
Étanchéité de toiture agréée - testée et certifiée pour une utilisation professionnelle.
Durable & recyclable - peut être éliminé en fin de vie de manière écologique avec les déchets ménagers.
Résiste aux racines - convient parfaitement à la végétalisation de ton toit et à la construction écologique.
Facile à poser - pas d'outils spéciaux, pas de chalumeau à gaz, pas de poste à souder nécessaire.
Étanchéité sans soudure en une seule pièce - protège de manière fiable contre l'humidité et les intempéries.

Misez sur l'EPDM - la solution intelligente pour votre toit, qui allie parfaitement durabilité, respect de l'environnement et facilité d'utilisation.

- Dimensions du film : 3,05 m x 2,5 m

- épaisseur 1,2 mm

- Poids surfacique : 1,5 kg/m

- Haute stabilité thermique de -45 °C à +130 °C

- Exempt de plastifiants

- Résistant aux UV, résistant à l'ozone

- Élasticité durable, allongement à la rupture > 300

Cornière de type 1c :

Pour une couverture de toit durable et sûre : la cornière en aluminium de type 1 c protège de manière fiable les transitions entre la couverture de toit et le bord du toit contre les infiltrations d'humidité. Il assure non seulement un maintien durable, mais aussi une finition propre et esthétique de la toiture - idéal pour les toits plats et les toits en appentis.

- Matériau : aluminium

- Couleur : anthracite revêtu par poudre

- longueur : 2 m

- Épaisseur : 0,8 mm

Vis de ferblantier avec rondelles d'étanchéité :

Les vis de ferblantier de haute qualité avec rondelle d'étanchéité assurent une fixation durablement étanche et stable des cornières. Conseil : Pour une meilleure tenue, nous recommandons 4 vis par profilé.

- Dimension : 4,5 mm de diamètre et 20 mm de longueur / Torx.

- Couleur : anthracite RAL 7016

Le pack d'accessoires est parfaitement adapté aux besoins habituels. Selon le type de fixation et de chevauchement, la consommation de matériel peut varier légèrement.

€ 689,00

Kit de gouttières à caisson, anthracite métallisé - Toit monopente pour 1 côté de toit jusqu'à 6 m

Plus de détails

Kit de gouttières à caisson, anthracite métallisé - Toit monopente pour 1 côté de toit jusqu'à 6 m

Pour toits en appentis avec une longueur allant jusqu'à 6 m, kit complet pour 1 pan de toit. 

Les kits de gouttières Marley protègent les murs et les fondations des cabanes de jardin et des maisons en bois massif de manière sûre et fiable contre les dommages causés par l'eau de pluie.

Les avantages :

  • Kit complet avec gouttières, tuyaux de descente et accessoires de fixation.
  • Facile à monter
  • Tout est fourni dans le kit
  • Résistant aux intempéries, aux UV et à la température
  • Plastique résistant aux chocs et de haute qualité
  • Qualité supérieure - Made in Germany
  • 10 ans de garantie

Contenu du set :   

  • 3x gouttière à caisson 70, 2m
  • 2x coque de jonction de gouttière 70
  • 2x embout pour gauche et droite 70
  • 1x manchon 70 / DN 53
  • 13x supports de gouttière réglables
  • 1x tuyau de descente DN 53, 2m
  • 2x coude de tuyau DN 53, 45
  • 1x collier de serrage avec anneau de levage

 

 

€ 179,00

Attache de gouttière

Plus de détails

Attache de gouttière

Une gouttière est la finition professionnelle de l'avant-toit. Il constitue la tôle de transition entre la surface du toit et la gouttière. L'insert assure une entrée d'eau contrôlée dans la gouttière.

Matériau : acier galvanisé, revêtu par poudre.

Dimensions : A:60 mm, B:125 mm, D:15 mm

Longueur : 200 cm

Épaisseur : 0,50 mm

Vis de ferblantier incluses

€ 39,00

Jeu de tuyaux de descente F1 DN60 pour EPDM - ne convient pas pour KSK

Plus de détails

Jeu de tuyaux de descente F1 DN60 pour EPDM - ne convient pas pour KSK

Pour le drainage des toits d'une largeur allant jusqu'à 300 cm.

Jeu de tuyaux de descente DN 60 anthracite avec embout d'entrée

Diamètre de l'anneau : 120mm
Diamètre du tube : 60 mm

Hauteur du toit jusqu'à 250 cm

1 boîte de jeu avec

  • prise de gouttière
  • Tuyau de descente
  • Courbes
  • Clips pour tuyaux

 

€ 329,00

Livraison à la période souhaitée et service administratif

Garantie Confort

Plus de détails

Garantie Confort

Quels produits sont couverts par la Garantie Confort ?

Notre Garantie Confort s'applique exclusivement aux produits destinés à un usage privé, notamment :

  • Abris de jardin et cabanes à outils – un espace de détente ou une solution de stockage pratique
  • Saunas – pour des moments de bien-être et de relaxation à domicile
  • Aires de jeux pour enfants – un espace ludique pour s’amuser en toute sécurité
  • Pavillons en bois – un coin de paradis dans votre jardin
  • Carports – une protection efficace pour votre véhicule contre la pluie, la neige et le soleil
  • Garages – un espace sécurisé avec du rangement supplémentaire

Grâce à cette garantie, vous bénéficiez d’un produit de qualité et d’une assistance rapide en cas de besoin.

Que couvre la Garantie Confort ?

Avec la Garantie Confort, pas d’inquiétude à avoir. En cas de dommage, vous recevez gratuitement les pièces de rechange, pour les éléments suivants : 

  • Portes (bris de verre jusqu’à 200€)
  • Fenêtres (bris de verre jusqu’à 200€)
  • Gouttières – pour une évacuation efficace de l’eau
  • Serrures de porte – pour une sécurité optimale
  • Ferrures – pour remplacer de petites pièces essentielles
  • Revêtement de toiture (feutre bitumé, bardeaux, KSK) – une protection efficace contre les intempéries

À savoir :
La Garantie Confort couvre uniquement la fourniture des pièces de rechange. L’installation reste à votre charge.

Avec la Garantie Confort, vous bénéficiez d’une protection optimale et profitez pleinement de votre produit Abrineo.com en toute sérénité.

€ 69,00

Accessoires pour votre produit

PGH Huile-cire dure 0,75 L

Plus de détails

PGH Huile-cire dure 0,75 L

Huile-cire dure de haute qualité pour l'intérieur

Notre huile-cire dure offre une solution de haute qualité pour l'apprêt et le traitement de différents supports absorbants à l'intérieur. Avec une surface satinée et résistante qui ravive les structures naturelles et approfondit les teintes, elle offre les meilleurs résultats pour les sols en bois, en liège, en pierre et autres surfaces. Facile à appliquer et testée selon les normes les plus strictes, elle est le choix idéal pour des résultats professionnels.

Détails de l'article Huile-cire dure :

  • Application : Apprêt et traitement des supports absorbants à l'intérieur.

  • Propriétés : surface satinée, approfondit la teinte, hydrofuge.
  • Testée sur la résistance aux produits chimiques et la migration.
  • Composants : huile de lin, huile de bois, huile de ricin, ester de résine naturelle, autres.
  • Teneur en COV : max. 440 g/l (valeur limite UE : max. 500 g/l).
  • Application : Agiter avant l'emploi, appliquer en fine couche, polir.
  • Temps de séchage : env. 6-12 heures, recouvrable après 16-24 heures.
  • Consommation : 30-50 g/m² ; rendement env. 20 m²/l.
  • Stockage : Au frais, au sec, non ouvert, se conserve au moins 24 mois.
  • Élimination des déchets : Selon les prescriptions locales.
  • Remarques : Les couleurs sont données à titre indicatif, il est recommandé de faire un essai.

€ 45,00

Kit de protection anti-intempéries S – jusqu’à 34 m² - Schwedenrot - Wetterschutzfarbe

Plus de détails

Kit de protection anti-intempéries S – jusqu’à 34 m² - Schwedenrot - Wetterschutzfarbe

Notre kit de peinture de protection contre les intempéries S – jusqu’à 34 m² protège efficacement vos bois extérieurs contre le soleil, la pluie, le froid et les rayons UV. Son film de peinture élastique garantit une protection durable ainsi qu’une finition uniforme et colorée.

La peinture bois rouge suédois, respectueuse de l’environnement, est particulièrement résistante. Elle ne s’écaille pas et convient parfaitement au bois brut de sciage ainsi qu’à toutes les constructions en bois extérieures.

Avantages :

  • Fort pouvoir couvrant

  • Résistante aux intempéries et aux UV

  • Perméable à la vapeur d’eau

  • Film élastique

  • Protection du film contre les champignons

  • Résistante à la salive et à la sueur (DIN 53 160)

Avant d’appliquer la peinture de finition, une préparation adaptée est essentielle. C’est pourquoi notre fond pour bois à pores ouverts a été spécialement conçu.

Il pénètre en profondeur, laisse respirer le bois et assure une excellente adhérence de la couche de finition. Vous optimisez ainsi la performance et l’aspect de votre lasure ou de votre vernis, aussi bien sur le plan technique qu’esthétique.

Pourquoi appliquer une sous-couche ?

  • Adhérence optimale des lasures et vernis

  • Action en profondeur, à pores ouverts

  • Adaptée à l’extérieur

  • Protection filmogène contre les champignons

  • Résistante aux intempéries après séchage complet

Contenu du kit :

  • 1 × 2,5 L de fond pour bois

  • 2 × 2,5 L de peinture de protection contre les intempéries, rouge suédois

€ 169,00

Notre kit de peinture de protection contre les intempéries S – jusqu’à 34 m² protège efficacement vos bois extérieurs contre le soleil, la pluie, le froid et les rayons UV. Son film de peinture élastique garantit une protection durable ainsi qu’une finition uniforme et colorée.

La peinture bois rouge suédois, respectueuse de l’environnement, est particulièrement résistante. Elle ne s’écaille pas et convient parfaitement au bois brut de sciage ainsi qu’à toutes les constructions en bois extérieures.

Avantages :

  • Fort pouvoir couvrant

  • Résistante aux intempéries et aux UV

  • Perméable à la vapeur d’eau

  • Film élastique

  • Protection du film contre les champignons

  • Résistante à la salive et à la sueur (DIN 53 160)

Avant d’appliquer la peinture de finition, une préparation adaptée est essentielle. C’est pourquoi notre fond pour bois à pores ouverts a été spécialement conçu.

Il pénètre en profondeur, laisse respirer le bois et assure une excellente adhérence de la couche de finition. Vous optimisez ainsi la performance et l’aspect de votre lasure ou de votre vernis, aussi bien sur le plan technique qu’esthétique.

Pourquoi appliquer une sous-couche ?

  • Adhérence optimale des lasures et vernis

  • Action en profondeur, à pores ouverts

  • Adaptée à l’extérieur

  • Protection filmogène contre les champignons

  • Résistante aux intempéries après séchage complet

Contenu du kit :

  • 1 × 2,5 L de fond pour bois

  • 2 × 2,5 L de peinture de protection contre les intempéries, rouge suédois

Notre kit de peinture de protection contre les intempéries S – jusqu’à 34 m² protège efficacement vos bois extérieurs contre le soleil, la pluie, le froid et les rayons UV. Son film de peinture élastique garantit une protection durable ainsi qu’une finition uniforme et colorée.

La peinture bois gris anthracite, respectueuse de l’environnement, est particulièrement résistante. Elle ne s’écaille pas et convient parfaitement au bois brut de sciage ainsi qu’à toutes les constructions en bois extérieures.

Avantages :

  • Fort pouvoir couvrant

  • Résistante aux intempéries et aux UV

  • Perméable à la vapeur d’eau

  • Film élastique

  • Protection du film contre les champignons

  • Résistante à la salive et à la sueur (DIN 53 160)

Avant d’appliquer la peinture de finition, une préparation adaptée est essentielle. C’est pourquoi notre fond pour bois à pores ouverts a été spécialement conçu.

Il pénètre en profondeur, laisse respirer le bois et assure une excellente adhérence de la couche de finition. Vous optimisez ainsi la performance et l’aspect de votre lasure ou de votre vernis, aussi bien sur le plan technique qu’esthétique.

Pourquoi appliquer une sous-couche ?

  • Adhérence optimale des lasures et vernis

  • Action en profondeur, à pores ouverts

  • Adaptée à l’extérieur

  • Protection filmogène contre les champignons

  • Résistante aux intempéries après séchage complet

Contenu du kit :

  • 1 × 2,5 L de fond pour bois

  • 2 × 2,5 L de peinture de protection contre les intempéries, gris anthracite

Notre kit de peinture de protection contre les intempéries S – jusqu’à 34 m² protège efficacement vos bois extérieurs contre le soleil, la pluie, le froid et les rayons UV. Son film de peinture élastique garantit une protection durable ainsi qu’une finition uniforme et colorée.

La peinture bois blanche, respectueuse de l’environnement, est particulièrement résistante. Elle ne s’écaille pas et convient parfaitement au bois brut de sciage ainsi qu’à toutes les constructions en bois extérieures.

Avantages :

  • Fort pouvoir couvrant

  • Résistante aux intempéries et aux UV

  • Perméable à la vapeur d’eau

  • Film élastique

  • Protection du film contre les champignons

  • Résistante à la salive et à la sueur (DIN 53 160)

Avant d’appliquer la peinture de finition, une préparation adaptée est essentielle. C’est pourquoi notre fond pour bois à pores ouverts a été spécialement conçu.

Il pénètre en profondeur, laisse respirer le bois et assure une excellente adhérence de la couche de finition. Vous optimisez ainsi la performance et l’aspect de votre lasure ou de votre vernis, aussi bien sur le plan technique qu’esthétique.

Pourquoi appliquer une sous-couche ?

  • Adhérence optimale des lasures et vernis

  • Action en profondeur, à pores ouverts

  • Adaptée à l’extérieur

  • Protection filmogène contre les champignons

  • Résistante aux intempéries après séchage complet

Contenu du kit :

  • 1 × 2,5 L de fond pour bois

  • 2 × 2,5 L de peinture de protection contre les intempéries, blanche

Notre kit de peinture de protection contre les intempéries S – jusqu’à 34 m² protège efficacement vos bois extérieurs contre le soleil, la pluie, le froid et les rayons UV. Son film de peinture élastique garantit une protection durable ainsi qu’une finition uniforme et colorée.

La peinture bois noire, respectueuse de l’environnement, est particulièrement résistante. Elle ne s’écaille pas et convient parfaitement au bois brut de sciage ainsi qu’à toutes les constructions en bois extérieures.

Avantages :

  • Fort pouvoir couvrant

  • Résistante aux intempéries et aux UV

  • Perméable à la vapeur d’eau

  • Film élastique

  • Protection du film contre les champignons

  • Résistante à la salive et à la sueur (DIN 53 160)

Avant d’appliquer la peinture de finition, une préparation adaptée est essentielle. C’est pourquoi notre fond pour bois à pores ouverts a été spécialement conçu.

Il pénètre en profondeur, laisse respirer le bois et assure une excellente adhérence de la couche de finition. Vous optimisez ainsi la performance et l’aspect de votre lasure ou de votre vernis, aussi bien sur le plan technique qu’esthétique.

Pourquoi appliquer une sous-couche ?

  • Adhérence optimale des lasures et vernis

  • Action en profondeur, à pores ouverts

  • Adaptée à l’extérieur

  • Protection filmogène contre les champignons

  • Résistante aux intempéries après séchage complet

Contenu du kit :

  • 1 × 2,5 L de fond pour bois

  • 2 × 2,5 L de peinture de protection contre les intempéries, noire

Notre kit de peinture de protection contre les intempéries S – jusqu’à 34 m² protège efficacement vos bois extérieurs contre le soleil, la pluie, le froid et les rayons UV. Son film de peinture élastique garantit une protection durable ainsi qu’une finition uniforme et colorée.

La peinture bois rouge suédois, respectueuse de l’environnement, est particulièrement résistante. Elle ne s’écaille pas et convient parfaitement au bois brut de sciage ainsi qu’à toutes les constructions en bois extérieures.

Avantages :

  • Fort pouvoir couvrant

  • Résistante aux intempéries et aux UV

  • Perméable à la vapeur d’eau

  • Film élastique

  • Protection du film contre les champignons

  • Résistante à la salive et à la sueur (DIN 53 160)

Avant d’appliquer la peinture de finition, une préparation adaptée est essentielle. C’est pourquoi notre fond pour bois à pores ouverts a été spécialement conçu.

Il pénètre en profondeur, laisse respirer le bois et assure une excellente adhérence de la couche de finition. Vous optimisez ainsi la performance et l’aspect de votre lasure ou de votre vernis, aussi bien sur le plan technique qu’esthétique.

Pourquoi appliquer une sous-couche ?

  • Adhérence optimale des lasures et vernis

  • Action en profondeur, à pores ouverts

  • Adaptée à l’extérieur

  • Protection filmogène contre les champignons

  • Résistante aux intempéries après séchage complet

Contenu du kit :

  • 1 × 2,5 L de fond pour bois

  • 2 × 2,5 L de peinture de protection contre les intempéries, rouge suédois

Notre kit de peinture de protection contre les intempéries S – jusqu’à 34 m² protège efficacement vos bois extérieurs contre le soleil, la pluie, le froid et les rayons UV. Son film de peinture élastique garantit une protection durable ainsi qu’une finition uniforme et colorée.

La peinture bois gris anthracite, respectueuse de l’environnement, est particulièrement résistante. Elle ne s’écaille pas et convient parfaitement au bois brut de sciage ainsi qu’à toutes les constructions en bois extérieures.

Avantages :

  • Fort pouvoir couvrant

  • Résistante aux intempéries et aux UV

  • Perméable à la vapeur d’eau

  • Film élastique

  • Protection du film contre les champignons

  • Résistante à la salive et à la sueur (DIN 53 160)

Avant d’appliquer la peinture de finition, une préparation adaptée est essentielle. C’est pourquoi notre fond pour bois à pores ouverts a été spécialement conçu.

Il pénètre en profondeur, laisse respirer le bois et assure une excellente adhérence de la couche de finition. Vous optimisez ainsi la performance et l’aspect de votre lasure ou de votre vernis, aussi bien sur le plan technique qu’esthétique.

Pourquoi appliquer une sous-couche ?

  • Adhérence optimale des lasures et vernis

  • Action en profondeur, à pores ouverts

  • Adaptée à l’extérieur

  • Protection filmogène contre les champignons

  • Résistante aux intempéries après séchage complet

Contenu du kit :

  • 1 × 2,5 L de fond pour bois

  • 2 × 2,5 L de peinture de protection contre les intempéries, gris anthracite

Notre kit de peinture de protection contre les intempéries S – jusqu’à 34 m² protège efficacement vos bois extérieurs contre le soleil, la pluie, le froid et les rayons UV. Son film de peinture élastique garantit une protection durable ainsi qu’une finition uniforme et colorée.

La peinture bois blanche, respectueuse de l’environnement, est particulièrement résistante. Elle ne s’écaille pas et convient parfaitement au bois brut de sciage ainsi qu’à toutes les constructions en bois extérieures.

Avantages :

  • Fort pouvoir couvrant

  • Résistante aux intempéries et aux UV

  • Perméable à la vapeur d’eau

  • Film élastique

  • Protection du film contre les champignons

  • Résistante à la salive et à la sueur (DIN 53 160)

Avant d’appliquer la peinture de finition, une préparation adaptée est essentielle. C’est pourquoi notre fond pour bois à pores ouverts a été spécialement conçu.

Il pénètre en profondeur, laisse respirer le bois et assure une excellente adhérence de la couche de finition. Vous optimisez ainsi la performance et l’aspect de votre lasure ou de votre vernis, aussi bien sur le plan technique qu’esthétique.

Pourquoi appliquer une sous-couche ?

  • Adhérence optimale des lasures et vernis

  • Action en profondeur, à pores ouverts

  • Adaptée à l’extérieur

  • Protection filmogène contre les champignons

  • Résistante aux intempéries après séchage complet

Contenu du kit :

  • 1 × 2,5 L de fond pour bois

  • 2 × 2,5 L de peinture de protection contre les intempéries, blanche

Notre kit de peinture de protection contre les intempéries S – jusqu’à 34 m² protège efficacement vos bois extérieurs contre le soleil, la pluie, le froid et les rayons UV. Son film de peinture élastique garantit une protection durable ainsi qu’une finition uniforme et colorée.

La peinture bois noire, respectueuse de l’environnement, est particulièrement résistante. Elle ne s’écaille pas et convient parfaitement au bois brut de sciage ainsi qu’à toutes les constructions en bois extérieures.

Avantages :

  • Fort pouvoir couvrant

  • Résistante aux intempéries et aux UV

  • Perméable à la vapeur d’eau

  • Film élastique

  • Protection du film contre les champignons

  • Résistante à la salive et à la sueur (DIN 53 160)

Avant d’appliquer la peinture de finition, une préparation adaptée est essentielle. C’est pourquoi notre fond pour bois à pores ouverts a été spécialement conçu.

Il pénètre en profondeur, laisse respirer le bois et assure une excellente adhérence de la couche de finition. Vous optimisez ainsi la performance et l’aspect de votre lasure ou de votre vernis, aussi bien sur le plan technique qu’esthétique.

Pourquoi appliquer une sous-couche ?

  • Adhérence optimale des lasures et vernis

  • Action en profondeur, à pores ouverts

  • Adaptée à l’extérieur

  • Protection filmogène contre les champignons

  • Résistante aux intempéries après séchage complet

Contenu du kit :

  • 1 × 2,5 L de fond pour bois

  • 2 × 2,5 L de peinture de protection contre les intempéries, noire

Kit de lasure pour bois extérieur S – jusqu’à 34 m² - Weiß - Lasur

Plus de détails

Kit de lasure pour bois extérieur S – jusqu’à 34 m² - Weiß - Lasur

Notre kit de lasure transparente pour bois – format S (jusqu’à 34 m²) est idéal pour protéger et embellir vos bois extérieurs.

Sa formule à pores ouverts est résistante aux intempéries et à l’eau, tout en préservant l’aspect naturel et la structure du bois.

Grâce à sa protection filmogène contre les champignons et le bleuissement, cette lasure convient parfaitement aux fenêtres, portes, clôtures, pergolas, avancées de toit et revêtements en bois.

Avant d’appliquer la lasure et d’obtenir un résultat final optimal, il est indispensable de préparer correctement le support.

Notre fond pour bois à pores ouverts a été spécialement conçu pour cette étape.

Il pénètre profondément dans le bois tout en le laissant respirer et assure une adhérence idéale de la couche de finition. Vous obtenez ainsi un résultat durable, à la fois esthétique et performant sur le plan technique.

Pourquoi appliquer une couche de fond ?

  • Adhérence optimale pour les lasures et vernis

  • À pores ouverts et action en profondeur

  • Adapté à un usage extérieur

  • Protection filmogène contre les champignons

  • Résistant aux intempéries après séchage complet

Contenu du kit :

  • 1 × 2,5 L de fond pour bois
  • 2 × 2,5 L de lasure pour bois – blanc transparent

€ 169,00

Notre kit de lasure transparente pour bois – format S (jusqu’à 34 m²) est idéal pour protéger et embellir vos bois extérieurs.

Sa formule à pores ouverts est résistante aux intempéries et à l’eau, tout en préservant l’aspect naturel et la structure du bois.

Grâce à sa protection filmogène contre les champignons et le bleuissement, cette lasure convient parfaitement aux fenêtres, portes, clôtures, pergolas, avancées de toit et revêtements en bois.

Avant d’appliquer la lasure et d’obtenir un résultat final optimal, il est indispensable de préparer correctement le support.

Notre fond pour bois à pores ouverts a été spécialement conçu pour cette étape.

Il pénètre profondément dans le bois tout en le laissant respirer et assure une adhérence idéale de la couche de finition. Vous obtenez ainsi un résultat durable, à la fois esthétique et performant sur le plan technique.

Pourquoi appliquer une couche de fond ?

  • Adhérence optimale pour les lasures et vernis

  • À pores ouverts et action en profondeur

  • Adapté à un usage extérieur

  • Protection filmogène contre les champignons

  • Résistant aux intempéries après séchage complet

Contenu du kit :

  • 1 × 2,5 L de fond pour bois
  • 2 × 2,5 L de lasure pour bois – blanc transparent

Notre kit de lasure transparente pour bois – format S (jusqu’à 34 m²) est idéal pour protéger et embellir vos bois extérieurs.

Sa formule à pores ouverts est résistante aux intempéries et à l’eau, tout en préservant l’aspect naturel et la structure du bois.

Grâce à sa protection filmogène contre les champignons et le bleuissement, cette lasure convient parfaitement aux fenêtres, portes, clôtures, pergolas, avancées de toit et revêtements en bois.

Avant d’appliquer la lasure et d’obtenir un résultat final optimal, il est indispensable de préparer correctement le support.

Notre fond pour bois à pores ouverts a été spécialement conçu pour cette étape.

Il pénètre profondément dans le bois tout en le laissant respirer et assure une adhérence idéale de la couche de finition. Vous obtenez ainsi un résultat durable, à la fois esthétique et performant sur le plan technique.

Pourquoi appliquer une couche de fond ?

  • Adhérence optimale pour les lasures et vernis

  • À pores ouverts et action en profondeur

  • Adapté à un usage extérieur

  • Protection filmogène contre les champignons

  • Résistant aux intempéries après séchage complet

Contenu du kit :

  • 1 × 2,5 L de fond pour bois
  • 2 × 2,5 L de lasure pour bois – pin transparent

Notre kit de lasure transparente pour bois – format S (jusqu’à 34 m²) est idéal pour protéger et embellir vos bois extérieurs.

Sa formule à pores ouverts est résistante aux intempéries et à l’eau, tout en préservant l’aspect naturel et la structure du bois.

Grâce à sa protection filmogène contre les champignons et le bleuissement, cette lasure convient parfaitement aux fenêtres, portes, clôtures, pergolas, avancées de toit et revêtements en bois.

Avant d’appliquer la lasure et d’obtenir un résultat final optimal, il est indispensable de préparer correctement le support.

Notre fond pour bois à pores ouverts a été spécialement conçu pour cette étape.

Il pénètre profondément dans le bois tout en le laissant respirer et assure une adhérence idéale de la couche de finition. Vous obtenez ainsi un résultat durable, à la fois esthétique et performant sur le plan technique.

Pourquoi appliquer une couche de fond ?

  • Adhérence optimale pour les lasures et vernis

  • À pores ouverts et action en profondeur

  • Adapté à un usage extérieur

  • Protection filmogène contre les champignons

  • Résistant aux intempéries après séchage complet

Contenu du kit :

  • 1 × 2,5 L de fond pour bois
  • 2 × 2,5 L de lasure pour bois – gris clair transparent

Notre kit de lasure transparente pour bois – format S (jusqu’à 34 m²) est idéal pour protéger et embellir vos bois extérieurs.

Sa formule à pores ouverts est résistante aux intempéries et à l’eau, tout en préservant l’aspect naturel et la structure du bois.

Grâce à sa protection filmogène contre les champignons et le bleuissement, cette lasure convient parfaitement aux fenêtres, portes, clôtures, pergolas, avancées de toit et revêtements en bois.

Avant d’appliquer la lasure et d’obtenir un résultat final optimal, il est indispensable de préparer correctement le support.

Notre fond pour bois à pores ouverts a été spécialement conçu pour cette étape.

Il pénètre profondément dans le bois tout en le laissant respirer et assure une adhérence idéale de la couche de finition. Vous obtenez ainsi un résultat durable, à la fois esthétique et performant sur le plan technique.

Pourquoi appliquer une couche de fond ?

  • Adhérence optimale pour les lasures et vernis

  • À pores ouverts et action en profondeur

  • Adapté à un usage extérieur

  • Protection filmogène contre les champignons

  • Résistant aux intempéries après séchage complet

Contenu du kit :

  • 1 × 2,5 L de fond pour bois
  • 2 × 2,5 L de lasure pour bois – gris anthracite transparent

Notre kit de lasure transparente pour bois – format S (jusqu’à 34 m²) est idéal pour protéger et embellir vos bois extérieurs.

Sa formule à pores ouverts est résistante aux intempéries et à l’eau, tout en préservant l’aspect naturel et la structure du bois.

Grâce à sa protection filmogène contre les champignons et le bleuissement, cette lasure convient parfaitement aux fenêtres, portes, clôtures, pergolas, avancées de toit et revêtements en bois.

Avant d’appliquer la lasure et d’obtenir un résultat final optimal, il est indispensable de préparer correctement le support.

Notre fond pour bois à pores ouverts a été spécialement conçu pour cette étape.

Il pénètre profondément dans le bois tout en le laissant respirer et assure une adhérence idéale de la couche de finition. Vous obtenez ainsi un résultat durable, à la fois esthétique et performant sur le plan technique.

Pourquoi appliquer une couche de fond ?

  • Adhérence optimale pour les lasures et vernis

  • À pores ouverts et action en profondeur

  • Adapté à un usage extérieur

  • Protection filmogène contre les champignons

  • Résistant aux intempéries après séchage complet

Contenu du kit :

  • 1 × 2,5 L de fond pour bois
  • 2 × 2,5 L de lasure pour bois – blanc transparent

Notre kit de lasure transparente pour bois – format S (jusqu’à 34 m²) est idéal pour protéger et embellir vos bois extérieurs.

Sa formule à pores ouverts est résistante aux intempéries et à l’eau, tout en préservant l’aspect naturel et la structure du bois.

Grâce à sa protection filmogène contre les champignons et le bleuissement, cette lasure convient parfaitement aux fenêtres, portes, clôtures, pergolas, avancées de toit et revêtements en bois.

Avant d’appliquer la lasure et d’obtenir un résultat final optimal, il est indispensable de préparer correctement le support.

Notre fond pour bois à pores ouverts a été spécialement conçu pour cette étape.

Il pénètre profondément dans le bois tout en le laissant respirer et assure une adhérence idéale de la couche de finition. Vous obtenez ainsi un résultat durable, à la fois esthétique et performant sur le plan technique.

Pourquoi appliquer une couche de fond ?

  • Adhérence optimale pour les lasures et vernis

  • À pores ouverts et action en profondeur

  • Adapté à un usage extérieur

  • Protection filmogène contre les champignons

  • Résistant aux intempéries après séchage complet

Contenu du kit :

  • 1 × 2,5 L de fond pour bois
  • 2 × 2,5 L de lasure pour bois – pin transparent

Notre kit de lasure transparente pour bois – format S (jusqu’à 34 m²) est idéal pour protéger et embellir vos bois extérieurs.

Sa formule à pores ouverts est résistante aux intempéries et à l’eau, tout en préservant l’aspect naturel et la structure du bois.

Grâce à sa protection filmogène contre les champignons et le bleuissement, cette lasure convient parfaitement aux fenêtres, portes, clôtures, pergolas, avancées de toit et revêtements en bois.

Avant d’appliquer la lasure et d’obtenir un résultat final optimal, il est indispensable de préparer correctement le support.

Notre fond pour bois à pores ouverts a été spécialement conçu pour cette étape.

Il pénètre profondément dans le bois tout en le laissant respirer et assure une adhérence idéale de la couche de finition. Vous obtenez ainsi un résultat durable, à la fois esthétique et performant sur le plan technique.

Pourquoi appliquer une couche de fond ?

  • Adhérence optimale pour les lasures et vernis

  • À pores ouverts et action en profondeur

  • Adapté à un usage extérieur

  • Protection filmogène contre les champignons

  • Résistant aux intempéries après séchage complet

Contenu du kit :

  • 1 × 2,5 L de fond pour bois
  • 2 × 2,5 L de lasure pour bois – gris clair transparent

Notre kit de lasure transparente pour bois – format S (jusqu’à 34 m²) est idéal pour protéger et embellir vos bois extérieurs.

Sa formule à pores ouverts est résistante aux intempéries et à l’eau, tout en préservant l’aspect naturel et la structure du bois.

Grâce à sa protection filmogène contre les champignons et le bleuissement, cette lasure convient parfaitement aux fenêtres, portes, clôtures, pergolas, avancées de toit et revêtements en bois.

Avant d’appliquer la lasure et d’obtenir un résultat final optimal, il est indispensable de préparer correctement le support.

Notre fond pour bois à pores ouverts a été spécialement conçu pour cette étape.

Il pénètre profondément dans le bois tout en le laissant respirer et assure une adhérence idéale de la couche de finition. Vous obtenez ainsi un résultat durable, à la fois esthétique et performant sur le plan technique.

Pourquoi appliquer une couche de fond ?

  • Adhérence optimale pour les lasures et vernis

  • À pores ouverts et action en profondeur

  • Adapté à un usage extérieur

  • Protection filmogène contre les champignons

  • Résistant aux intempéries après séchage complet

Contenu du kit :

  • 1 × 2,5 L de fond pour bois
  • 2 × 2,5 L de lasure pour bois – gris anthracite transparent

Plans de montage et documents
Abri de jardin Paloma Petit Téléchargements disponibles : Conseils-de-securite-pour-les-abris-de-jardin-alpholz.pdf
Avis clients

Note moyenne de 5 sur 5 étoiles

(1)

Note moyenne de 5 sur 5 étoiles

(1 Avis)

Note moyenne de 5 sur 5 étoiles

Détails du produit
Épaisseur de paroi
28
Type de matériau
Epicéa nordique
Traitement de surface
Sans
Couleur de base
Naturel
Surface de base
4,4
Dimensions totales (cm)
230 x 230
Hauteur totale
228
Volume de l'espace
9,6
Sol
Inclus
Type de construction
Madriers
Type de toiture
Toit plat
Surface du toit (m²)
5,3
Pente du toit
3
Toiture
Sans
Dimensions intérieures (cm)
204 x 204
Dimensions de la base (cm)
207 x 207
Dimensions de la porte (cm)
160 x 185 cm

Ces produits pourraient vous plaire :